Exquisite private villa under construction with 4 floors and elevator, located in Nueva Andalucía, Marbella
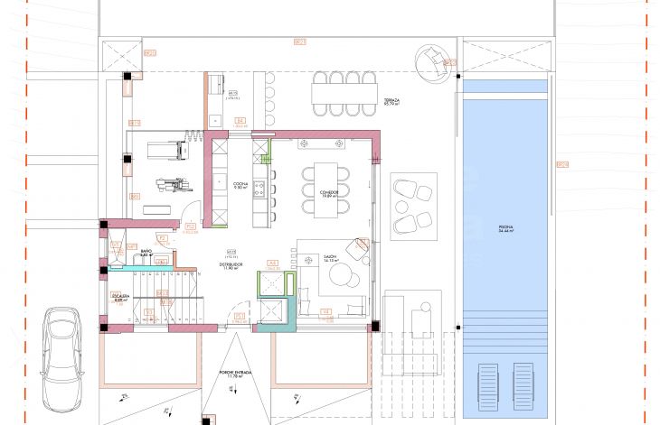
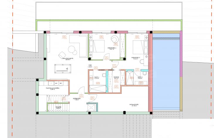
Exquisite private villa under construction designed with a modern, efficient, and sustainable approach. The property was developed by Especial Inmo Projects, a development sponsored by the prestigious Red Point construction company. Designed and furnished by Grace and Soul, the villa has four floors with an elevator and is located in the La Cerquilla development in Nueva Andalucía, an area of luxury villas very close to the Los Naranjos and Las Brisas golf courses. It also features security. It offers a total of four to five very spacious bedrooms and five full bathrooms. The property is spread over four floors. On the ground floor, there is a spacious entrance hall, a large open-plan living room, an elegant dining area, a kitchen equipped with prestigious appliances, a state-of-the-art gym that can be used as an additional bedroom, a bathroom, and a generous terrace with a lounge and outdoor kitchen. A barbecue area leads to the infinity pool with an illuminated waterfall and remote-controlled lighting. On the first floor, there are two en-suite bedrooms and a spacious private terrace. On the lower ground floor, there is a games room, a TV lounge, two en-suite bedrooms, a dressing room, and a large terrace. The upper level features a 100 m² solarium with panoramic views and space for a chill-out area or celebrations. Completion in February 2026. The property will be delivered fully furnished.
- Close to town
- Utility room
- Brand new
- Security service 24h
- Kitchen equipped
- Amenities near
- Country view
- Transport near
- Laundry room
- Lift
- Panoramic view
- Fully furnished
- Excellent condition
Get exact location and Full details
for this Villa in La Cerquilla, Nueva AndaluciaSimilar properties
Modern, newly built 4-bedroom villa in Nueva Andalucía, Marbella
Modern three-story villa with four en-suite bedrooms, recently built (2023), located in the sought-after La Cerquilla area of Nueva Andalucía, Marbella. The entrance level features an open-plan living ...
- 4 beds
- 4 baths
- 646 m²
- 308-02097P
Magnificent estate with two adjoining plots located opposite Puerto Banús, Marbella.
Magnificent estate located opposite Puerto Banus, comprising two adjoining plots, each with a building, ideally situated in a prime residential area, one of the most exclusive on the Golden Mile. The larger ...
- 4 beds
- 4 baths
- 300 m²
- 308-02050P
Wonderful Mediterranean style villa with sea and mountain views in Aloha, Marbella
Wonderful Mediterranean style villa with beautiful sea and mountain views of more than 350 m² on three floors and a guest house, garage and private pool just 500 meters from the sea located in Nueva ...
- 6 beds
- 6 baths
- 368 m²
- 308-01956P























